-
流體阻力小
流體阻力小,其阻力系數與同長度的管段相等。
-
結構簡單
結構簡單、體積小、重量輕。
-
緊密可靠
緊密可靠,目前球閥的密封面材料廣泛使用塑料、密封性好,在真空系統中也已廣泛使用。
-
操作方便
操作方便,開閉迅速,從全開到全關只要旋轉90°,便于遠距離的控制。
-
維修方便
維修方便,球閥結構簡單,密封圈一般都是活動的,拆卸更換都比較方便。
-
不侵蝕密封面
在全開或全閉時,球體和閥座的密封面與介質隔離,介質通過時,不會引起閥門密封面的侵蝕。
-
適用范圍廣
適用范圍廣,通徑從小到幾毫米,大到幾米,從高真空至高壓力都可應用。
-
-
產品優點
產品介紹
Q11F-16P三片式球閥產品配置:閥體:304 球體:304 密封:PTFE。應用領域有:市政建設、水利工程、電力、給排水、水處理、石油等。
產品參數

執行標準 | 設計制造標準 | 端部 | 檢查和試驗標準 |
GB12237-2007 | GB/T196-2003 | GB13927 | |
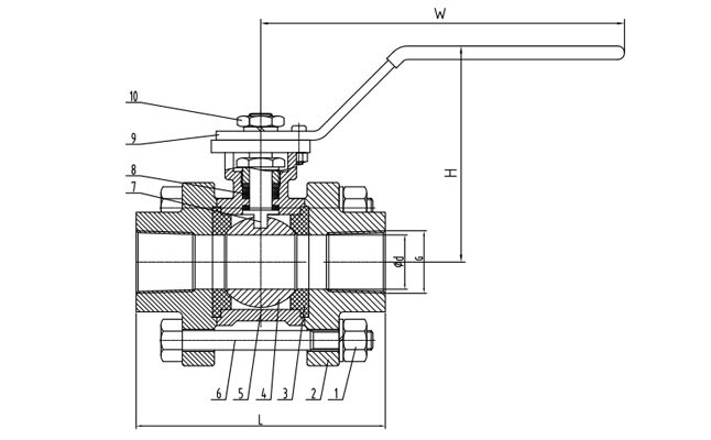
主要零部件信息 | 5-閥體 | 4-球體 | 3-密封圈 |
F304 | F304 | PTFE | |
尺寸信息 | DN | G | L |
15 | 1/2” | 72 | |
20 | 3/4” | 82 | |
25 | 1” | 91 | |
32 | 1-1/4” | 111 | |
40 | 1-1/2” | 118 | |
50 | 2” | 143 |
